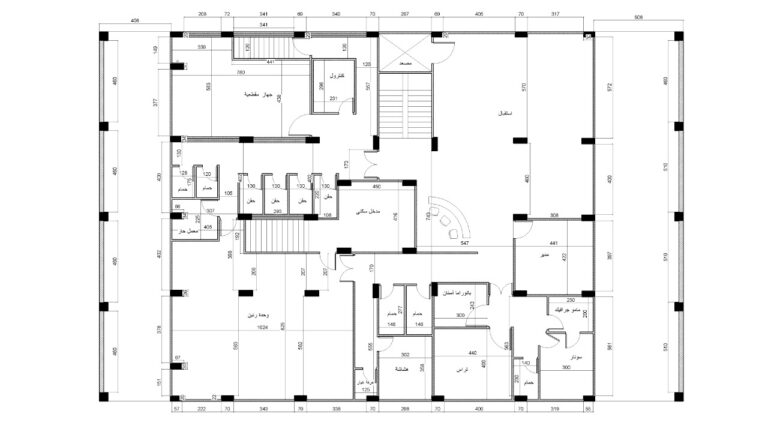
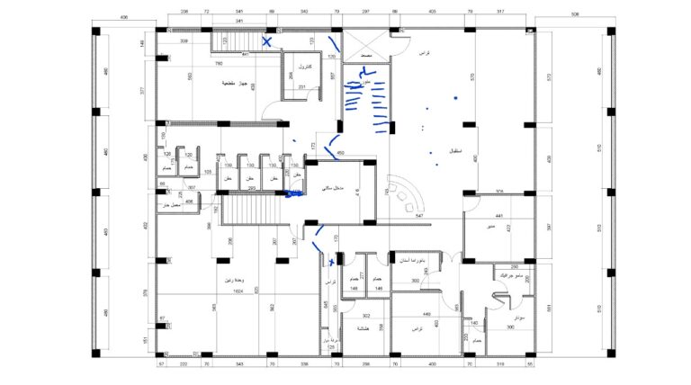
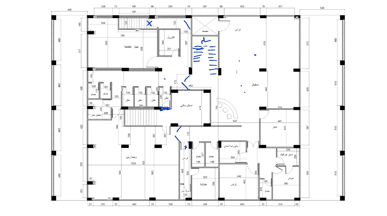
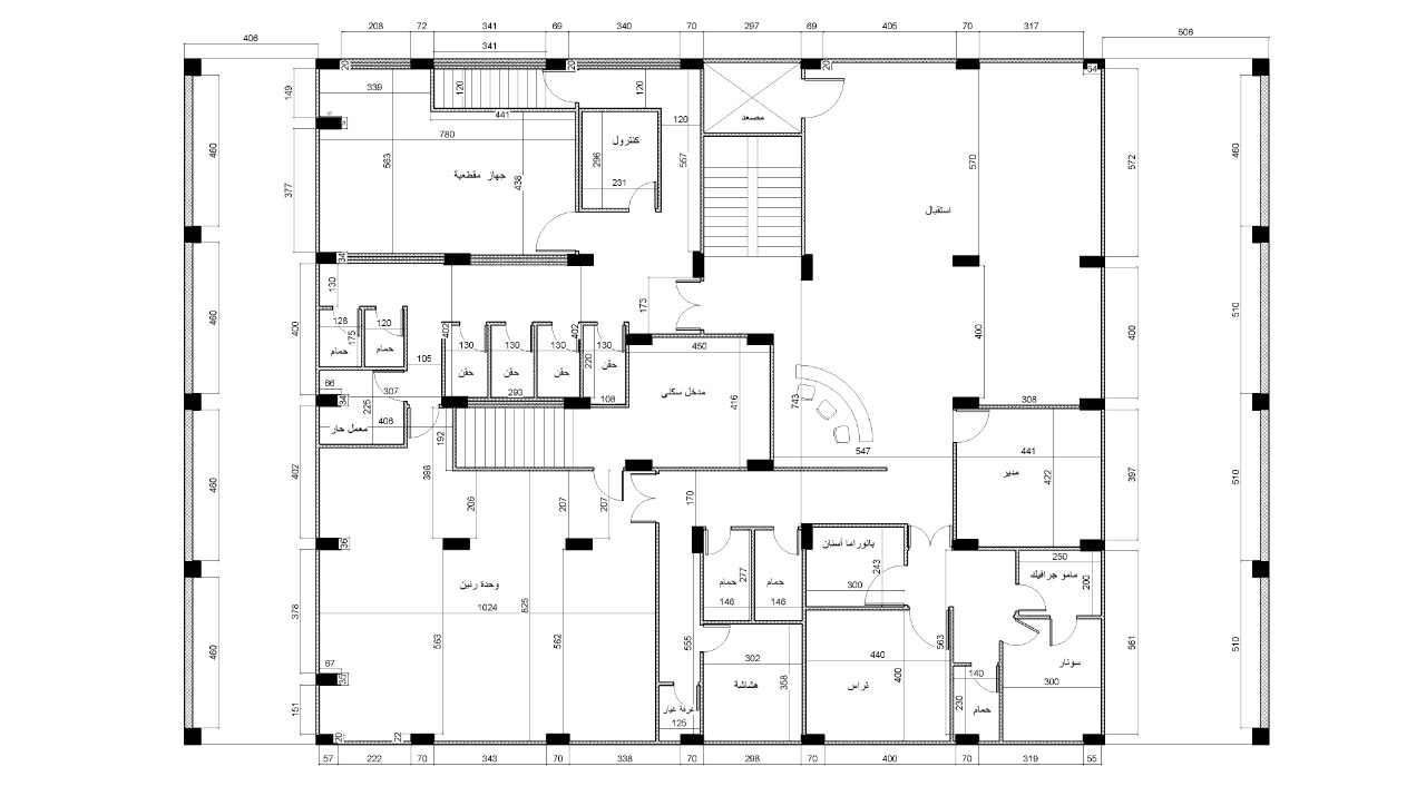
مركز دار الإيمان
قمنا بتنفيذ مركز دار الإيمان للأشعة ليكون صرحًا متكاملًا للتشخيص الطبي الحديث، من خلال تجهيز غرف الأشعة المقطعية والرنين المغناطيسي والأشعة الرقمية، مع بنية تحتية هندسية مطابقة للمعايير وأنظمة عزل إشعاعي متطورة، لضمان أعلى درجات الدقة والجودة في الخدمة.